製品情報
products
農業施設
粒体
全自動自主検査装置
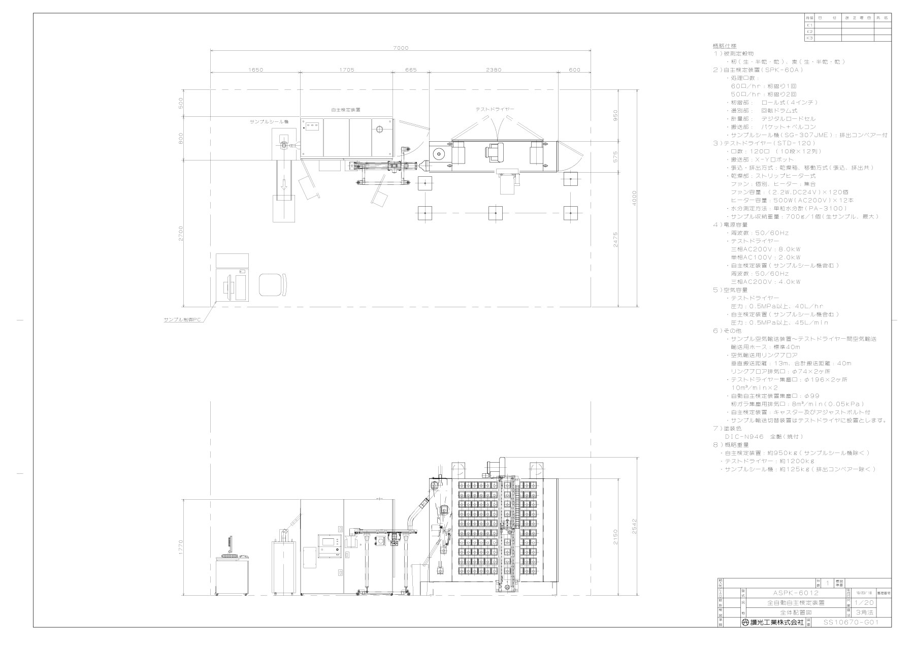
サンプル取得から乾燥、自主検査、サンプルパックまでを全て自動で行い、施設の省力化に貢献します。水分測定は単粒式水分計を採用、正確に水分を測定し過乾燥を防ぎます。コンパクト設計で設置場所を選びません。
概略仕様
テストドライヤー仕様
型式
STD−120/150
口数
120口/150口
乾燥乾減率
籾 1%/h 麦 1.5%/h
サンプル収容重量
800g/1個(生サンプル)
自主検査装置仕様
型式
SPK-60A
能力
60口/h
電源
テストドライヤー
AC200V(三相) 8.0kW
自主検査装置
AC200V(三相) 4.0kW
AC100V(単相) 2.0kW
AC200V(三相) 8.0kW
自主検査装置
AC200V(三相) 4.0kW
AC100V(単相) 2.0kW
業種や主な選別原料
業種
カントリーエレベーター/ライスセンター
選別原料
籾/玄米/大麦/小麦/大豆(※)
※大豆対応はオプションとなります。
※大豆対応はオプションとなります。
特長
・荷受、乾燥、自主検査の処理を並行して行えます。
・個別ファン個別乾燥で過乾燥を防ぎます。
各種部品およびオプション
・サンプル搬送コンベア
・品位計ユニット
・品位、食味計ユニット
・多段選別仕様
・米麦、大豆兼用仕様